设为首页
|
加入收藏
网站首页
公司简介
产品展示
新闻中心
销售网络
联系我们
电子邮局
产品目录
PRODUCTS
静态混合设备
聚合反应换热设备
动态混合设备
过滤设备
专用设备
管用专用小型设备
油罐附件系列
联系方式
CONTACT
地址:江苏省启东市紫薇中路758号
电话:0513-83223588 83221029
传真:0513-83221029
邮箱:webmaster@ke-wei.com
首页
>>
静态混合器
>> QD/HT型蒸汽减温器(急冷器)
QD/HT型蒸汽减温器(急冷器)
加入时间:
2015-3-26 16:21:00
点击:
次
■
产品概述
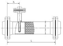
蒸汽减温器是近代节能工程普遍采用的一种设备,该设备由减温水雾化装置与组合式汽化单元两大部分组成,雾化喷嘴对减温水进行压力雾化,分散于高温蒸汽汽流中,组合式汽化单元进一步对雾化减温水强制性旋转、剪切破碎,并在汽化单元内件表面被吸热汽化,显著强化了汽化过程,达到高温蒸汽的减温。该设备具有结构简单,雾化减温效率高、能耗小、投资少、操作弹性大、安装维修简单等优点。
产 品 型 号
入口蒸
汽量t/h
蒸汽入口、
出口管径
入口蒸
汽温度℃
出口蒸
汽温度℃
减 温
水管径
设备总长L
水管与
入口距离h
QHT0.6(1.0)-1.5/100
<1.5
100
250(425)
153(250)
32(25)
1000
150
QHT0.6(1.0)-3.0/100
1.5~3.0
100
250(425)
153(250)
32(25)
1000
150
QHT0.6(1.0)-5.0/150
3.0~5.0
150
250(425)
153(250)
32(25)
1100
150
QHT0.6(1.0)-7.0/200
5.0~7.0
200
250(425)
153(250)
32(25)
1200
170
QHT0.6(1.0)-10/200
7.0~10
200
250(425)
153(250)
32(25)
1200
170
QHT0.6(1.0)-15/200
10~15
200
250(425)
153(250)
40(32)
1200
170
QHT0.6(1.0)-20/250
15~20
250
250(425)
153(250)
40(32)
1300
170
QHT0.6(1.0)-30/300
20~30
300
250(425)
153(250)
50(32)
1400
200
QHT0.6(1.0)-40/400
30~40
400
250(425)
153(250)
50(32)
1600
200
注:减温水压力~2.0MPa,流量(7~15)%汽量,括号内尺寸为DSL-1.0系列蒸汽减温器数据
上一页:
浸没式汽水加热器
下一页:
衬四氟混合器
[ 其它相关文章 ]
氨气空气混合器
静态混合器
PSQ-型蒸汽喷射真空泵
浸没式汽水加热器
塑料混合器
SQS系列汽水混合器
液固喷射器(水喷射式装卸车..
喷射混合器
启东市科威石化机械设备制造有限公司 地址:江苏省启东市紫薇中路758号 邮编:226200
电话:0513-83223588 83221029 传真:0513-83221029
E-mail:webmaster@ke-wei.com