性能特点
视镜是工业管道装置上主要附件之一,在石油、化工、医药、食品、造纸等工业生产装置的管道中,能随时观察管道液体、气体、蒸汽等介质流动及反应情况,起到监视生产、避免生产过程中事故发生的作用。

产品型号标注

标记示例
选择单压型法兰连接式视镜,内部结构摆板式,法兰公称压力为0.6MPa,公称直径80mm,主体材料为低碳钢。标记:SG-II-P-0.6—80/C。

注:本表结构形式主要针对I型、II型和III型。
产品规格及技术参数
(1)SG-I对夹型视镜
|
DN
|
窗径W
|
管内D
|
H
|
L
|
适用工况
|
|
PN≤1.6
|
PN≤2.5
|
|
8
|
58
|
40
|
75
|
140
|
160
|
PN≤2.5MPa
工作压力≤1.0MPa
工作温度0-180℃
|
|
10
|
58
|
40
|
75
|
140
|
160
|
|
15
|
58
|
40
|
75
|
140
|
160
|
|
20
|
68
|
50
|
85
|
160
|
180
|
|
25
|
68
|
50
|
85
|
160
|
180
|
|
40
|
78
|
60
|
115
|
180
|
200
|
|
 |
(2)SG—II单压型视镜
|
DN
|
窗径W
|
管内径D
|
PN0.6
|
PN1.0、PN1.6
|
PN2.5
|
|
H
|
L
|
H
|
L
|
H
|
L
|
|
50
|
80/80
|
65/50
|
200
|
220
|
200
|
220/250
|
210
|
250/270
|
|
65
|
102/100
|
80/102
|
230
|
250
|
230
|
250/270
|
240
|
270/320
|
|
80
|
102/100
|
102/102
|
245
|
270
|
245
|
270/270
|
270
|
320/380
|
|
100
|
125/125
|
125/125
|
330
|
320
|
330
|
320/320
|
360
|
360/420
|
|
125
|
150/150
|
150/150
|
340
|
360
|
360
|
370/400
|
400
|
410/480
|
|
150
|
200/200
|
200/200
|
350
|
420
|
420
|
430/440
|
440
|
480/550
|
|
 |
注:分母为摆板式单压视镜。工作压力≤1.OMPa,工作温度0-180℃。
(3)SG—III全螺纹型视镜
|
DN
|
窗径W
|
管内D
|
H
|
L
|
适用工况
|
|
PN≤1.6
|
PN≤2.5
|
|
6
|
58
|
G1/4
|
75
|
140
|
160
|
PN≤2.5MPa
工作压力≤1.0MPa
工作温度0-180℃
|
|
10
|
58
|
G3/8
|
75
|
140
|
160
|
|
15
|
58
|
G1/2
|
75
|
140
|
160
|
|
20
|
68
|
G3/4
|
85
|
160
|
180
|
|
25
|
68
|
G1″
|
85
|
160
|
180
|
|
40
|
78
|
G11/2″
|
115
|
180
|
200
|
|
 |
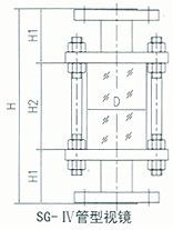
(4)SG—IV管型视镜
|
DN
|
PN
|
H
|
H1
|
H2
|
玻璃管
|
|
直径
|
厚度
|
|
20
|
1.0
|
250
|
78
|
94
|
F50
|
4
|
|
25
|
1.0
|
250
|
78
|
94
|
F50
|
4
|
|
40
|
1.0
|
250
|
78
|
94
|
F60
|
5
|
|
50
|
1.0
|
250
|
78
|
94
|
F75
|
5
|
|
60
|
1.0
|
250
|
78
|
94
|
F90
|
5
|
|
 |
(5)SG—Va螺纹连接浮球型视镜
|
DN
|
d
|
D1
|
D
|
L
|
H
|
球Ф
|
图 号
|
|
20
|
16
|
G3/4″
|
38
|
120
|
70
|
18
|
HGSO-128-01~4
|
|
25
|
16
|
G1″
|
40
|
120
|
70
|
18
|
HGSO-128-01~4
|
|
32
|
16
|
G11/4″
|
50
|
124
|
76
|
18
|
HGSO-128-01~4
|
|
40
|
16
|
G11/2″
|
56
|
124
|
80
|
18
|
HGSO-128-01~4
|
|
50
|
16
|
G2″
|
66
|
124
|
85
|
18
|
HGSO-128-01~4
|
|
 |
注:PN≤0.6MPa,工作压力≤0.3MPa,工作温度≤180℃。
(6)SG—Vb法兰连接浮球型视镜
|
DN
|
d
|
D1
|
D
|
L
|
H
|
球Ф
|
图 号
|
|
65
|
65
|
130
|
160
|
340
|
260
|
40
|
HGSO-128-01-1~4
|
|
80
|
80
|
150
|
185
|
340
|
270
|
40
|
HGSO-128-01-1~4
|
|
100
|
100
|
170
|
205
|
340
|
277
|
40
|
HGSO-128-01-1~4
|
|
125
|
125
|
200
|
235
|
340
|
290
|
40
|
HGSO-128-01-1~4
|
|
150
|
150
|
225
|
260
|
340
|
302
|
40
|
HGSO-128-01-1~4
|
|
 |
注:PN≤0.6HPa,工作压力≤0.3MPa,工作温度≤180℃。
(7)SG—VI框式对夹型视镜
|
DN
|
W
|
A
|
H
|
B
|
L
|
适用工况
|
|
PN≤1.6
|
PN≤2.5
|
|
15
|
18
|
75
|
85
|
110
|
200
|
200
|
PN≤2.5MPa
工作压力≤1.0MPa
工作温度0-180℃
|
|
20
|
18
|
75
|
85
|
110
|
200
|
200
|
|
25
|
22
|
80
|
95
|
120
|
210
|
210
|
|
40
|
30
|
90
|
125
|
120
|
210
|
230
|
|
 |
(8)SG—VII框式单压型视镜
|
DN
|
W
|
A
|
H
|
B
|
L
|
适用工况
|
|
PN≤1.6
|
PN≤2.5
|
|
50
|
30
|
90
|
140
|
120
|
210
|
230
|
PN≤2.5MPa
工作压力≤1.0MPa
工作温度0-180℃
|
|
65
|
30
|
90
|
155
|
120
|
220
|
250
|
|
80
|
35
|
100
|
180
|
120
|
230
|
250
|
|
100
|
35
|
100
|
205
|
120
|
230
|
260
|
|
125
|
40
|
110
|
235
|
130
|
260
|
290
|
|
150
|
40
|
110
|
260
|
130
|
260
|
290
|
|
 |
(9)SG—VIII a容器视镜
|
DN
|
PN
|
D
|
D1
|
b1
|
b2
|
≈H
|
螺 柱
|
|
数量n
|
直径d
|
|
50
|
1.0
|
130
|
100
|
34
|
22
|
79
|
6
|
M12
|
|
1.6
|
130
|
100
|
34
|
24
|
79
|
6
|
M12
|
|
2.5
|
130
|
100
|
34
|
26
|
84
|
6
|
M12
|
|
80
|
1.0
|
160
|
130
|
36
|
24
|
86
|
8
|
M12
|
|
1.6
|
160
|
130
|
36
|
26
|
91
|
8
|
M12
|
|
2.5
|
160
|
130
|
36
|
28
|
96
|
8
|
M12
|
|
100
|
1.0
|
200
|
165
|
40
|
26
|
100
|
8
|
M16
|
|
1.6
|
200
|
165
|
40
|
28
|
105
|
8
|
M16
|
|
125
|
1.0
|
225
|
190
|
40
|
28
|
105
|
8
|
M16
|
|
150
|
1.0
|
250
|
215
|
40
|
30
|
110
|
12
|
M16
|
|
 |
注:工作温度0—180℃
(10)SG—VIIIb容器带颈视镜
|
DN
|
PN
|
D
|
D1
|
b1
|
b2
|
dh×s
|
h
|
≈H
|
螺 柱
|
|
数量n
|
直径d
|
|
50
|
1.0
|
130
|
100
|
34
|
22
|
57×3.5
|
70
|
79
|
6
|
M12
|
|
1.6
|
130
|
100
|
34
|
24
|
57×3.5
|
70
|
79
|
6
|
M12
|
|
2.5
|
130
|
100
|
34
|
26
|
57×3.5
|
70
|
84
|
6
|
M12
|
|
80
|
1.0
|
160
|
130
|
36
|
24
|
89×4
|
70
|
86
|
8
|
M12
|
|
1.6
|
160
|
130
|
36
|
26
|
89×4
|
70
|
91
|
8
|
M12
|
|
2.5
|
160
|
130
|
36
|
28
|
89×4
|
70
|
96
|
8
|
M12
|
|
100
|
1.0
|
200
|
165
|
40
|
26
|
108×4
|
80
|
100
|
8
|
M16
|
|
1.6
|
200
|
165
|
40
|
28
|
108×4
|
80
|
105
|
8
|
M16
|
|
125
|
1.0
|
225
|
190
|
40
|
28
|
133×4
|
80
|
105
|
8
|
M16
|
|
150
|
1.0
|
250
|
215
|
40
|
30
|
159×4.5
|
80
|
110
|
12
|
M16
|
|
 |
注:容器视镜参照HGJ501-501-86标准,工作温度0~180℃
(11)SG—IX a单压异径型视镜
|
DN1×DN2
|
L
|
D
|
H
|
适用工况
|
|
PN0.25
|
PN0.6
|
|
25×32
|
260
|
95
|
226
|
234
|
工作温度
0~180℃
|
|
40×50
|
320
|
140
|
226
|
278
|
|
50×65
|
320
|
140
|
226
|
278
|
|
65×80
|
360
|
165
|
300
|
308
|
|
80×100
|
360
|
165
|
300
|
308
|
|
 |
(12)SG—IX b单压三通型视镜
|
DN
|
L
|
D
|
H
|
|
I
|
II
|
III
|
PN0.25
|
PN0.6
|
|
25
|
40
|
40
|
260
|
95
|
226
|
234
|
|
25
|
50
|
50
|
320
|
140
|
266
|
278
|
|
25
|
65
|
65
|
320
|
140
|
266
|
278
|
|
40
|
80
|
80
|
360
|
165
|
300
|
308
|
|
40
|
100
|
80
|
360
|
165
|
300
|
308
|
|
25
|
40
|
50
|
320
|
140
|
266
|
278
|
|
40
|
50
|
65
|
320
|
140
|
266
|
278
|
|
50
|
65
|
80
|
360
|
165
|
300
|
308
|
|
50
|
80
|
100
|
360
|
165
|
300
|
308
|
|
 |
注:工作温度0—180℃ |